- Вы здесь:
- Главная

- Каталог

- Коттеджи, дома кредит 4% от Беларусбанка "На родныя тавары"

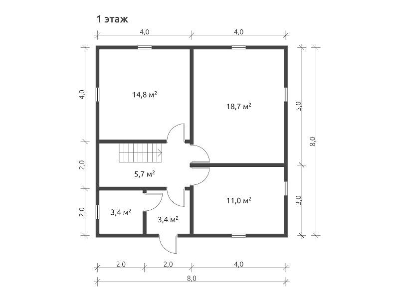
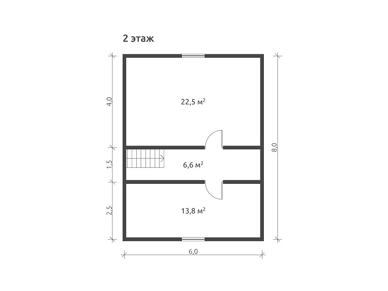
- Уютный загородный дом из бруса КА-127
* обязательно для заполнения
* Отправив заявку Вы соглашаетесь на обработку персональных данных
Строительство домов
Заказ пиломатериалов
Режим работы:
Пн-Пт: 09:00-17:00
Сб: 09:00-15:00
Вс: выходной
Данный сайт является интернет-витриной. Размещенная информация носит справочный характер и не является публичной офертой. Опубликованные товары служат образцами изделий, которые наше предприятие может изготовить.