Строительство домов, бань, производство пиломатериалов

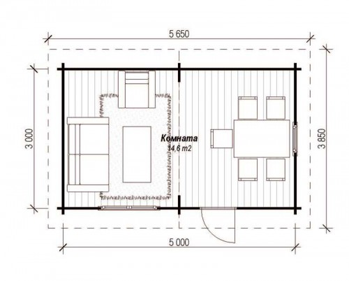
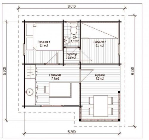
Летние домики

 

+375 (29)156-81-01

Строительство домов


+375 (29)156-81-01

Заказ пиломатериалов

 

Режим работы:

Пн-Пт: 09:00-17:00
Сб: 09:00-15:00
Вс: выходной

Данный сайт является интернет-витриной. Размещенная информация носит справочный характер и не является публичной офертой. Опубликованные товары служат образцами изделий, которые наше предприятие может изготовить.